Jugendzentrum Asebe Teferi
In der Stadt Asebe Teferi arbeiten wir bereits seit Beginn unserer Mission mit einer Gemeinde zusammen, die sich durch ihre Aktivität und ihren Einsatz für den Herrn besonders auszeichnet. Eigentlich ist Asebe Teferi als Einsatzort nicht einfach; der Anteil des Islam ist hoch, die Menschen eher ablehnend dem Evangelium gegenüber. Doch das hielt die Gemeinde Asebe Teferi nicht auf. Sie arbeiteten zielstrebig daran, die Menschen zu erreichen, und das hat der Herr gesegnet. Die Gemeinde wuchs und musste sich bereits mehrfach teilen – was kann man sich mehr wünschen?
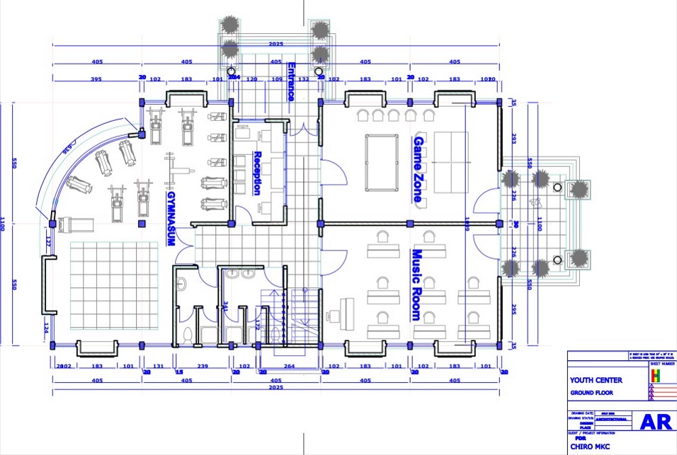
Doch ein Bereich blieb in all dieser Arbeit auf der Strecke, und das war die Jugend. Die Kinderarbeit lief hervorragend und war enorm fruchtbar, vor allem, seit wir hier mit geschulten Kindermissionarinnen halfen. Aber nach der Sonntagsschule stagnierte die Entwicklung der bis dahin hochmotivierten Kinder und verflachte. Es war kein Programm da, um die Jugendlichen weiter aufzubauen. So kamen Jugendliche auf uns zu und baten uns um Hilfe. Sie brauchten einen richtigen Jugendraum für sich, in dem sie verschiedene Programme durchführen konnten. Der Bedarf war erkennbar groß, das galt nicht nur für unsere Gemeinde, sondern auch für andere Denominationen in der Stadt. Überall dasselbe Problem – die Jugend wurde wenig beachtet.
Für diesen Bau mussten wir zunächst den Grund vorbereiten und dazu das Gemeindebüro abreißen – kein Verlust, es war ein altes Lehmgebäude, das wurde ohnehin Zeit. An anderer Stelle wurde das Büro neugebaut. Dann wurde das Fundament für das Gebäude für die Jugend in Angriff genommen. Die Freude der jungen Leute ist groß, und der Bau kommt voran, trotz der politischen Unruhen, die auch in Asebe Teferi spürbar waren.
-
Jugend aus Deutschland zu Besuch in Asebe Teferi für die gemeinsame Planung -
-
-
-
Stand: Februar 2023 -
Stand: Februar 2023
Für eine gezielte Unterstützung dieses Projektes einfach bei der Überweisung einer Spende „Jugendzentrum Asebe Teferi“ als Verwendungszweck angeben.
Unser Spendenkonto* bei der Raiffeisen-Volksbank Fresena eG hat folgende IBAN:
DE32 2836 1592 2401 8848 00
Möge der HERR die Gabe und den Geber segnen!
*Die Evangeliums-Mission Äthiopien ist spendenberechtigt und kann Spendenbescheinigungen erstellen. Bitte dazu die Anschrift mitteilen.